【仙台賃貸ナビ】 アパート 不動産はアパマンショップのアパートナー仙台支店

仙台の優良な不動産管理物件、ゼロ賃貸情報(賃貸アパート、マンション)は仙台賃貸ナビのアパートナー仙台支店!

物件詳細

KMDハウス 201号室 仙台市青葉区旭ケ丘[アパート]

 

KMDハウス 201号室 仙台市青葉区旭ケ丘[アパート]の物件詳細ページです。

物件種別:アパート

お問い合わせ番号:110000000013

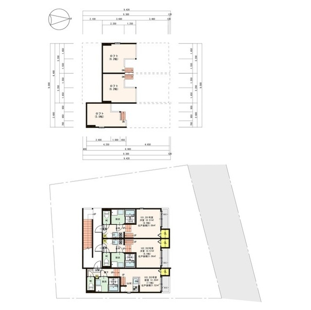
間取り

1K

面積:21.06㎡

賃料

5.25万円

管理費等: 4000円

交通: 仙台地下鉄南北線 台原駅 徒歩7分

敷金/礼金: -/ -

保証金/敷引/償却金: -/ -/ -

所在地: 仙台市青葉区旭ケ丘

築年月: 2016年12月

 

問い合わせ(無料)

TEL: 022-794-8131

お問い合わせ番号: 110000000013

QRコード

資料請求などはこちら

問い合わせ(無料)

株式会社アパートナー 仙台南店

TEL: 022-794-8131

お問い合わせ番号: 110000000013

セールスポイント

特徴 デザイナーズ,最上階,ロフト,メゾネット,角住戸,管理形態(巡回),フリーレント
設備 宅配BOX,システムキッチン,2口コンロ,バス・トイレ別,バス有,浴室乾燥,温水洗浄便座,洗面台,洗面所独立,洗面化粧台,シャワー付洗面台,エアコン,照明付き,BS,ネット使用料不要,インターホン,TVインターホン,給湯,ガス給湯,フローリング,室内洗濯機置場,シーリングファン,クローゼット,シューズボックス,ガス(プロパン),電気
天井高 空調 1基
駐車場 駐車場:無 駐輪場:有

物件概要

物件名 KMDハウス 201号室
物件所在地 宮城県仙台市青葉区旭ケ丘1丁目36番3号
交通機関 仙台地下鉄南北線 台原駅 徒歩7分
仙台地下鉄南北線 旭ヶ丘(宮城)駅 徒歩10分
間取り詳細 洋室(6.5畳) ロフト(5.9畳)
専有面積 21.06㎡
所在階/地上階数 2/ 2 部屋向き
建物構造 木造 築年月 2016年12月
総戸数 6
賃料 5.25万円 管理費等 4000円
その他一時金 とくとくCLUB:2,200円 室内消毒料:19,800円 仲介業者請求事務手数料:16,500円 その他費用
その他月次費用 町費:200円
損害保険 有 
契約形態 普通借家契約 期間 契約期間:2年
保証会社 必須 保証会社/シノケンコミュニケーションズ加入必須【初回保証料】○連保有→0円 ●連保無→賃料計100%【年毎更新料】15,000円or20,000円 保証人代行 必須
現況 退去予定 入居時期 予定 2025年11月上旬
入居条件 ペット(不可),楽器等の使用(不可),二人(不可)

その他

取引態様 仲介先物 自社管理番号 110000000013
情報更新日 2025年10月14日 次回更新予定日 2025年11月13日
不動産会社コード 2108266 物件管理コード 1102024427890000127402
  • ※間取りの「S」はサービスルーム(納戸)です。
  • ※QRコードは(株)デンソーウェーブの登録商標です。

資料請求などはこちら

問い合わせ(無料)

株式会社アパートナー 仙台南店

TEL: 022-794-8131

お問い合わせ番号: 110000000013

お問い合わせ先:株式会社アパートナー 仙台南店

所在地 : 宮城県仙台市宮城野区宮千代3丁目1-2千代一番館
TEL : 022-794-8131
免許番号 : 国土交通大臣(6)第5830号

この部屋を見学予約

ホームへ戻る

当サイト「仙台賃貸ナビ」は株式会社アパートナー
仙台支店が運営するWebサイトです。

株式会社アパートナー仙台
Copyright © 株式会社アパートナー仙台
本町店/大崎八幡店/仙台卸町店/イオンスタイル仙台卸町店 All rights reserved.